RÉHABILITATION DE L’ANCIEN POSTE DE GARDE EN OFFICE DU TOURISME

Salines Royales de Dieuze / Classé au titre des Monuments Historiques


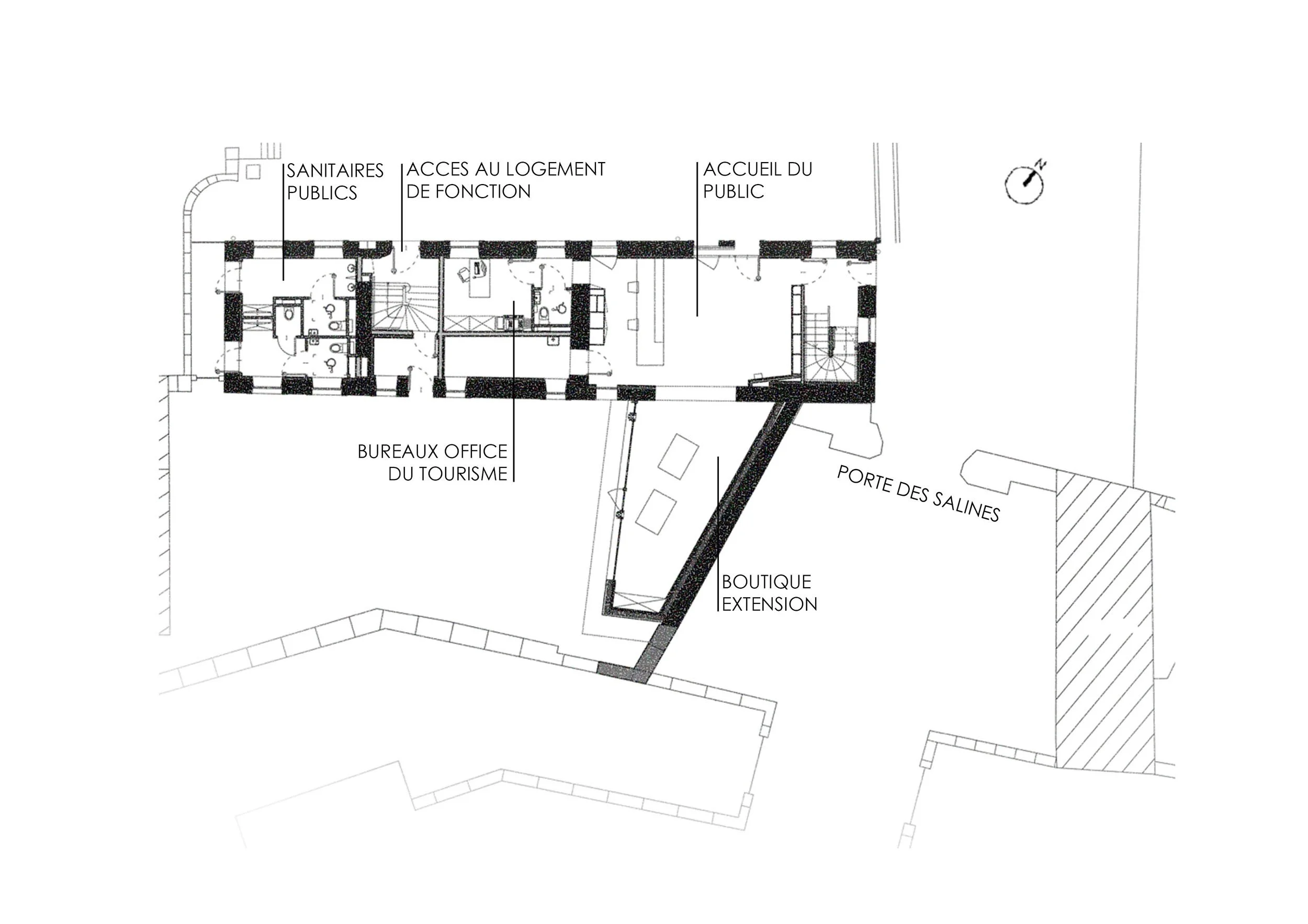
C’est dans l’ancien poste de garde datant du XVIIIème siècle qu’a pris place le nouvel Office du Tourisme de la commune. Les travaux ont constitué en la restructuration du bâtiment existant, fortement dégradé suite à son abandon, et à la construction d’une extension en ossature bois dans le jardin à l’arrière du bâtiment.

L’édifice intègre désormais trois fonctions. A l’est, l’Office du Tourisme à proprement parler avec au Rez-de-chaussée la zone d’accueil du public et sa boutique dans l’extension nouvellement créée. Les bureaux, salle de réunion et autres locaux inhérents à l’office sont répartis au rez-de-chaussée et à l’étage du bâtiment. Dans la salle de réunion, nous avons déposé le plancher des combles afin de créer un volume généreux. Du côté ouest de l’ancien poste de garde a été installé un logement de fonction de type T3 dans lequel nous avons pu conserver le bel escalier bois d’origine. Pour finir, depuis le pignon ouest on accède à un ensemble de sanitaires publics destinés aux touristes de passage.


MOA : Ville de Dieuze
MOE :
Architectes : J.FABBRI - LA COMO
BET Structure : CETOBA
BET Fluides : SNC LAVALIN
Paysagiste : Stéphane THALGOTT
Montant des travaux : 1.0M€ HT
Surface : 270m²
Année : Livré en 2017
Rôle tenu : Romain KLEIN / Chargé d’affaires pour LA COMO

Précédent
Précédent

Puits salé / Dieuze (57)

Suivant
Suivant

Ancien Hôtel-Dieu / Etampes (91)